A new development at the heart of Waterloo

  • Sustainable
  • Forward looking
  • Inclusive
  • Supporting the creative and cultural sectors
Aspiring to:
  • Redefine the workplace and create an exemplar office environment that puts health, sustainability and innovation at its heart. As long terms owners of these assets we want to deliver a building that sets the tone for new development in the area and that we can be proud of for many years to come.
  • Create a fully inclusive building and are proposing an affordable office programme that will deliver significant benefits to the community and support the local creative and cultural sectors.
  • Improve the public realm and environment around Waterloo Road with the development providing substantial public realm contributions to improve Emma Cons Gardens, Waterloo Road and Cornwall Road.
  • Use the developments sustainability wellbeing and corporate social responsibility credentials to attract the next wave of forward thinking businesses to Waterloo.

Waterloo Station arrival experience

Given the development’s very important location directly opposite Waterloo Station, the subject site represents many millions of commuters impression of Waterloo and the wider area.

Waterloo Road Approach As Existing

  • Incoherent mix of low quality buildings and blank frontages.
  • Relates poorly to the surrounding context
  • Poor quality office and retail.

Emma Cons Garden / Cornwall Road As Existing

  • Underwhelming and underused ‘left-over’ space.
  • Does not relate positively with the Old Vic theatre
  • Lack of street activity.
  • Poor streetscape encourages antisocial behaviour.

Waterloo Central will transform Waterloo Road through the delivery of a highquality landmark office development and a destination retail parade. The proposals will create an enhanced sense of place on arrival at this key transport hub and elevate impressions of the area encouraging commuters to explore Waterloo and enjoy the world class retail, leisure, and cultural experiences it offers.

slide left
slide right

The creation of new retail frontages at Mercury House alongside the proposed transformation of Emma Cons Gardens will create a key new focal point at the heart of Waterloo. Activation of Cornwall Road frontage will mitigate anti social behaviour providing natural surveillance.

Sustainability -
a game changing building

The developer recognises its responsibility to deliver a building with exemplar sustainability credentials in this strategically important location opposite the best connected station in the UK. The development will attract businesses that are environmentally conscious and share the building’s values for a sustainable future.

Reducing energy demand with intelligent buiding systems

Generating electricity on site with with the UK’s first meaningful integrated solar panel facades

All-electric fossil fuel free building

BREAAM outstanding

Committing to off-site renewable energy generation achieving an operationally net-zero building

Setting a new standard for Waterloo

Affordable Workspace
& Social Benefit Programme

Waterloo and Southbank is home to a major cultural cluster including the Southbank Centre, National Theatre, BFI, Rambert, Old Vic and Young Vic drawing over 30 million visitors a year.

Waterloo Central’s affordable workspace proposal will support Lambeth’s goal of establishing Waterloo and Southbank as London’s leading creative, and cultural hub.

This will be achieved through the provision of a significant affordable programme (“AWP”) providing fully subsidised and discounted workspace designed with these industries in mind.

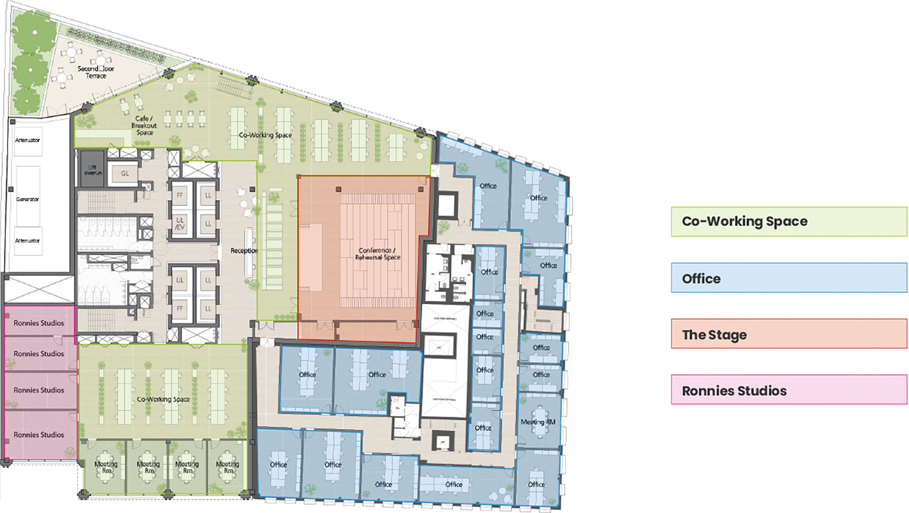
The AWP will deliver vital new cultural infrastructure to support the creative and cultural sectors including the provision of affordable recording studios and a new double height auditorium/performance space for Waterloo.

Waterloo Central’s AWP will provide;
  1. Subsidised workspace for freelancers and small businesses within the creative and cultural industries;
  2. ‘The Stage’ – a new creative auditorium/performance space to be used by local cultural organisations, artists, musicians and the community;
  3. ‘Ronnies Studios’: ‘Not for profit’ recording studios managed by Ronnie Scott’s to nurture future talent;
  4. Ronnies Academy- a academy programme managed by Ronnie Scotts Charitable Foundation will be based within the affordable workspace and will host regular academy classes at the Stage and Ronnies Studios to provide musical experiences and classes to young aspiring artists and musicians and Lambeth residents in partnership with local charities and schools;
  5. Fully subsidised office space for local cultural organisations including the Old Vic and Young Vic Theatres;

The AWP will be provided at the heart of Waterloo Central across the entire second floor of the development.

The AWP will deliver circa 18,000 sq ft of affordable workspace and will go beyond policy with the applicant now proposing to extend the AWP from 15 years to 20 years. The total value of the affordable programme in rental subsidy estimated to be c £13m over a period of 20 years.

slide left
slide right

Affordable Workspace
& Social Benefit Programme

Economic Benefits

Social Benefits

Public Realm and the Emma
Cons Gardens Opportunity

Emma Cons Gardens represents a significant opportunity to create a leading public realm environment in the heart of Waterloo. The current situation of Emma Cons Gardens is one of anti-social behaviour, littering and rough sleeping.

Not only will the development improve the built environment along Waterloo Road but the development will also contribute towards a local public realm regeneration scheme with the following key objectives;

  • Opportunity to create one of London’s public realm gems facing the World renowned Old Vic Theatre
  • Create a tranquil and green environment in the Heart of Waterloo
  • Deliver a space that locals and visitors can be proud of
  • Use the Public Realm Scheme to stitch together Waterloo Road, Lower Marsh, Cornwall Rod and The Cut and enhance wayfinding
  • Working with Local Interested Groups to advance the proposals with Lambeth Council
  • We have fully funded the community led design process to planning submission and will voluntarily contributing a further £1m to the regeneration of Emma Cons Gardens

Summary of benefits

Providing a high quality sustainable development at the heart of Waterloo

Employment space for 2,500 people

Significant investment in the wider public realm including Emma Cons Gardens.

A transformational Affordable Workspace programme with a CSR linkage with local community initiatives.

A game changing sustainability design with the 1st building in London with a meaningful on site renewable energy strategy with the use of integrated PV technology on the facade.

Delivery of vital new cultural infrastructure including not-for-profit recording studios for artists and a new creative auditorium/ performance space for Waterloo.

Transforming the Waterloo Station arrival experience on Waterloo Road elevating impressions of the area.

In partnership with Oasis Academy, the creation and delivery of a meaningful local youth mentoring and apprenticeship programme.

Scheme providing a catalyst for further investment in to the area.

Significant value add to the local economy provision of over £8m per annum in business rates income and £12 m of CIL generated by the development.